+39 393 9308680
adgimmobiliare@gmail.com
Home
Vendite
Affitti
Attività
Turistici
Servizi
Contatti
Ricerca rapida
Codice
Tipologia
Vendite
Affitti
Attività
Turistici
Categoria
Qualsiasi
1 locale
2 locali
3 locali
4 o più locali
Appartamento
Attico
Azienda Agricola
Baita
Cantina
Capannone
Casa singola
Castello
Crotto
Dépendance
Duplex
Garage
Hotel
Laboratorio
Loft
Magazzino
Maisonette
Mansarda
Negozio
Porzione di Casa
Porzione Villa
Posto Auto
Posto Barca
Rustico/Casale
Stabile / Palazzo
Tenuta
Terreno Agricolo
Terreno Edificabile
Trullo
Ufficio
Villa
Villa Bifamiliare
Villetta schiera
Città
Tutte
Assemini (CA)
Cagliari (CA)
Decimoputzu (SU)
Maracalagonis (CA)
Quartu Sant'Elena (CA)
Quartucciu (CA)
Selargius (CA)
Serrenti (SU)
Sestu (CA)
Zona
Tutte
Descrizione
Prezzo (da - a)
-
Mq (da - a)
-
Ordine
Inserimento
Codice
Categoria
Città
Zona
Prezzo
Metri quadri
Cerca
Scheda Immobile
<< Torna indietro
La tua nuova casa .... su misura per te!
Codice V001261
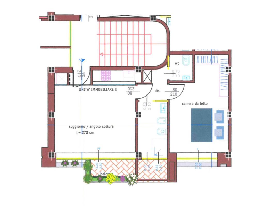
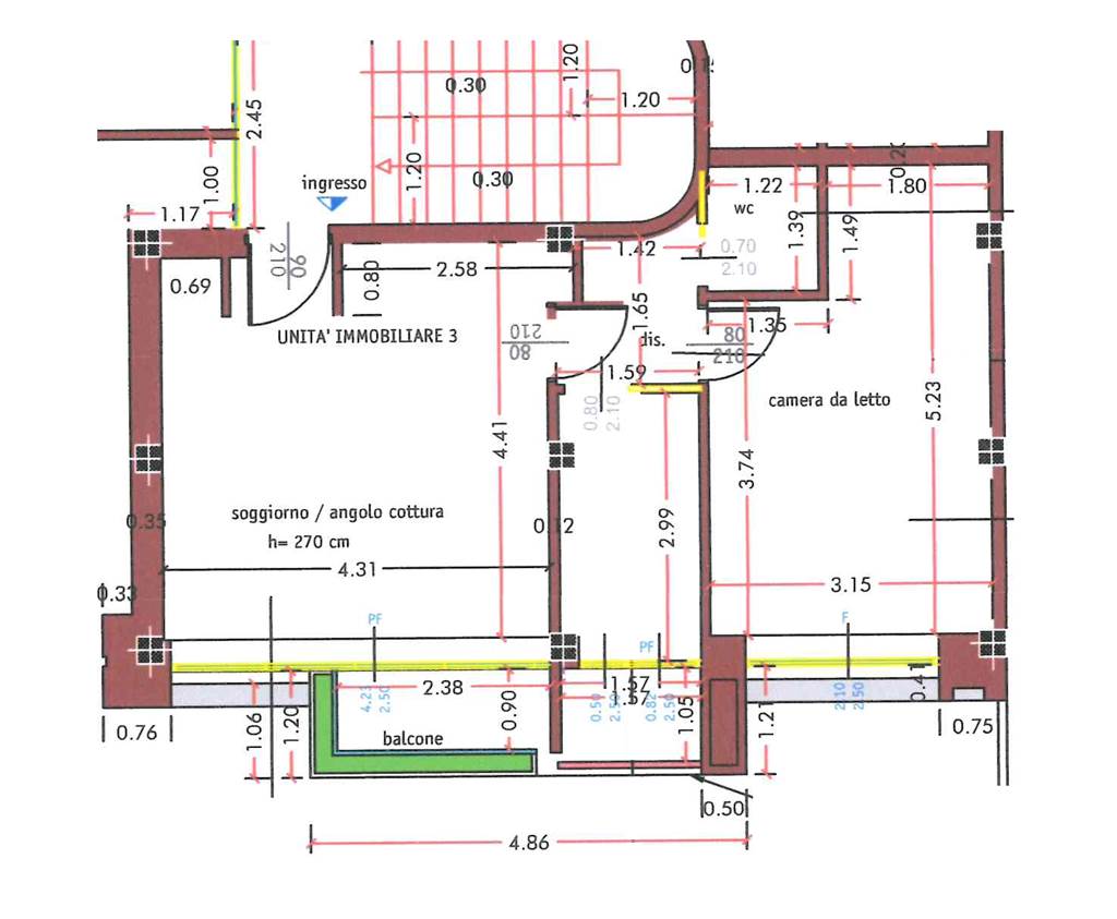
A Quartucciu stà sorgendo una nuova residenza di prestigio con appartamenti “confezionati su misura” in base ai gusti del cliente.
La caratteristica di queste residenze sarà che per ogni immobile verrà fatto uno studio architettonico in modo che ogni unità sia un pezzo unico.
Un design moderno, raffinato e accogliente.
Le tipologie disponibili sono di funzionali bilocali con possibilità del doppio bagno ubicati al primo piano con ascensore.
L'appartamento è caratterizzato da una confortevole zona living che ospita la
cucina a vista e che tramite un ampia vetrata scorrevole viene messa in
comunicazione con il balcone a livello. Nella zona notte è presente la spaziosa camera da letto matrimoniale con bagno privato e cabina armadio, mentre nel disimpegno è presente un secondo bagno per gli ospiti.
Se la nostra proposta è di tuo gradimento, contattaci immediatamente e fissa un appuntamento anche tramite whatsapp al 3939333029.
Prezzo
150.000,00 EUR
Mq
60
Classe
A4
Locali
2
Camere
1
Bagni
2
Posti auto
1
Mq Balcone
7
Stato Immobile
In Costruzione
Grado
Signorile
Piano
Primo
Totale Piani
Due
Tipo Soggiorno
Soggiorno
Tipo Cucina
Angolo Cottura
Riscaldamento
Autonomo
Tipo Riscaldam.
Pompa di Calore
Acqua Calda
Autonoma
Infissi
PVC Triplo Vetro
Serramenti
Nuovo
Accessori
Antifurto, Aria Condizionata, Armadio a muro, Ascensore, Cancello Elettrico, Doppi Vetri, Impianto Domotica, Impianto Fotovoltaico, Impianto Satellitare, Porta Blindata, Tapparelle Elettriche, Video Citofono
Richiedi informazioni
Compila questo modulo per inviarci una mail
di richiesta informazioni per questo immobile
Riferimento Immobile
Nominativo
Telefono
Email
Testo richiesta
Autorizzo il trattamento dei miei dati personali in base Regolamento UE n. 679/2016
Tutti i campi sono obbligatori
Invia
MAPPA
via Luras 36, Quartucciu (CA)
Mantieni impostazioni di default X
Uso dei cookies
Questo sito fa uso di cookies. I nostri cookies (propri) e quelli dei nostri Partners (cookies di terzi) servono per poterti offrire un'esperienza unica con noi. Per questo motivo, insieme ai nostri partners, raccogliamo e processiamo informazioni non sensibili (come l'identificatore del tuo dispositivo o le pagine che visiti).
In qualsiasi momento potrai eliminare, modificare o verificare le informazioni che condividi in
Cookie preference
o nella nostra
Cookie Policy
e
Privacy Policy
.
Necessari
Funzionali
Profilazione
Analitici
Accetta tutti
Rifiuta tutti
Accetta selezionati
Cookie preference